• Home
  • Back
  • ZENITH TOWERS

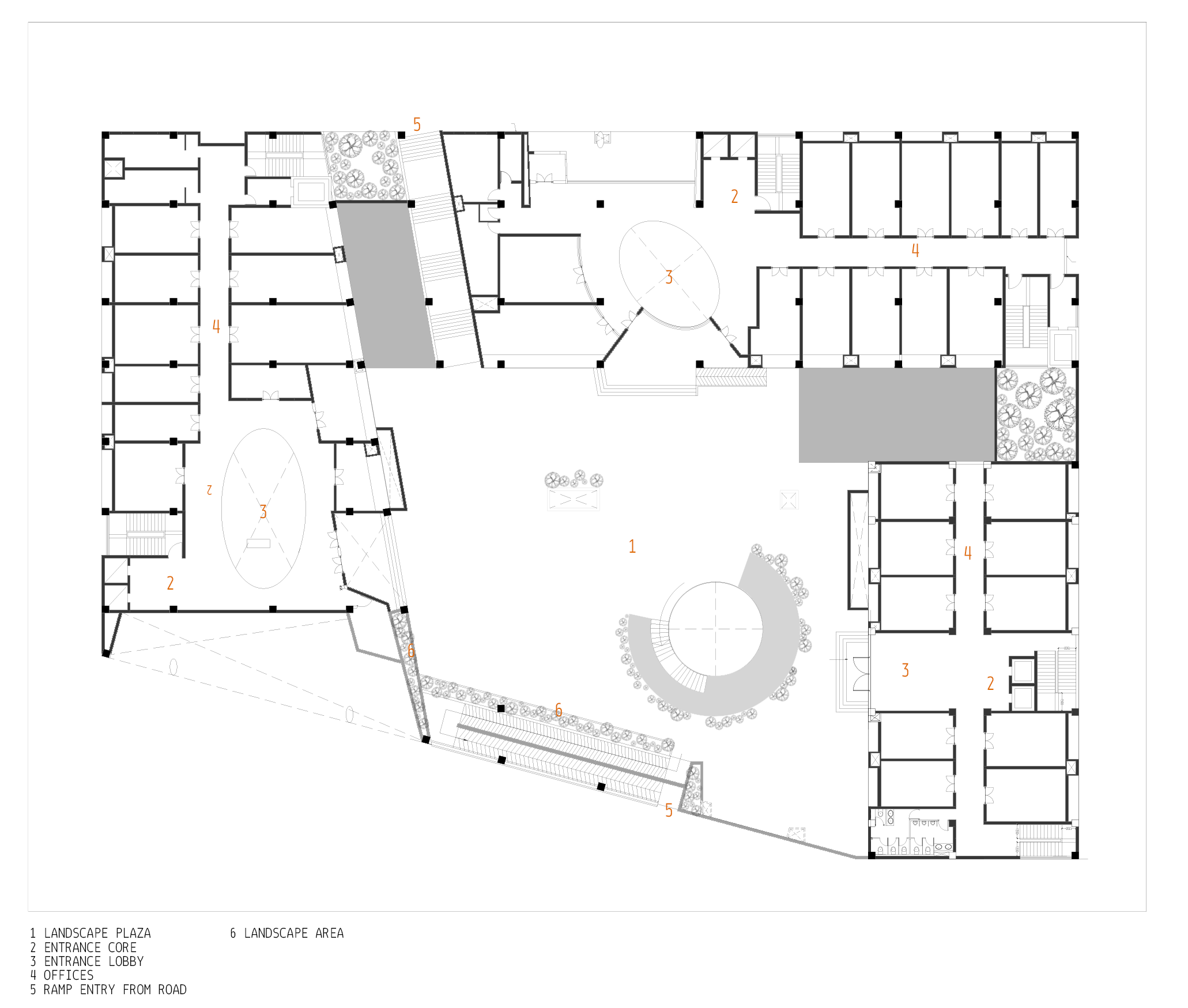
    An office complex designed on a large commercial plot in Golf City Lucknow. The architectural design of the project was based on the concept of Podium buildings and since there was a limitation of no basements the parking and related services were accommodated in the lower floors along with retail space which had a direct link with access roads. An entire landscaped podium was the break out space for all the offices. All aspects of the project were tackled seamlessly under one roof.

     

    Location

    :

    Golf City, Lucknow, UP

    Completion

    :

    Ongoing

    Area

    :

    300000 sq.ft.

    Client

    :

    Ansal API